Property Details
104 Lillian Lane SE
Rainier, WA 98576
$524,950
Pending Inspection
Schedule a Tour
Select your date preference
Request More Info
1 / 40
About This Home
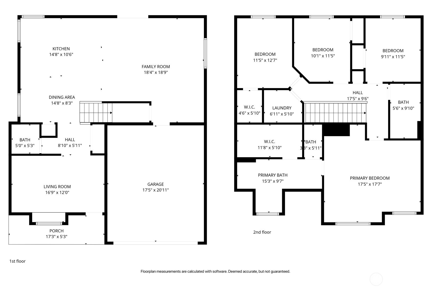
Great location. Great home. Small town with only about 2,000 occupants, wonderful paved walking trails, parks and sport courts and City water so pure, there is no need for additives. Newer light and bright 4Bd/2.5Ba home in pristine condition on extra large 0.3 acre fenced lot. Great open floor plan with huge great room, gourmet kitchen with Espresso colored cabinets and lots of storage, stainless appliances, huge island and gorgeous new white stone counters and backsplash, pantry, sliding door to patio and large fenced back yard with a couple of fruit trees and garden space. All spacious rooms – primary bedroom with spa like master bath, large soaking tub & double sink vanity, double shower & separate toilet compartment and a large walk-in closet. White painted mill work. Also, large side gate to Extra RV/boat pad behind the fence. Small subdivision with only $120/yr dues for maintenance of common areas. No neighbors in front or on the left side. Coveted Rainier School district. Located off on a side street and close to conveniences & JBLM.
Property Details
Property Information
Property Type
Residential
Subtype
Single Family Residence
Status
Pending Inspection
County
Thurston
Neighborhood
Rainier
Listed
Apr 18, 2026
Interior Features
Bedrooms
4
Bathrooms
3.0
Half Baths
1
Living Area
2,236 sq ft
Basement
None
Interior Features
Bath Off Primary, Ceiling Fan(s), Dbl Pane/Storm Window, Dining Room, Pantry, Walk-In Closet(s), Water Heater
Exterior & Lot
Lot Size
0.30 sqft
Year Built
2017
Exterior Materials
Cement Plank, Wood
Parking
Attached Garage, RV Parking
Sewer
Septic Tank
Water Source
Public
Lot Features
Dead End Street, Paved, Sidewalk
Exterior Features
Cement Planked, Wood
Location
City
Rainier
County
Thurston
Coordinates
46.89477, -122.69555
Schools
School District
Rainier
Elementary School
Rainier Primary Sch
Middle School
Rainier Mid
High School
Rainier Snr High
HOA / Association
HOA Fee
$120 / Annually
HOA Includes
Common Area Maintenance
Additional Information
Builder
RGD
Tax Year
2026
Annual Taxes
$5,456
Possession
Array
Community Features
CCRs, Playground
Inclusions
Dishwasher(s),Leased Equipment,Microwave(s),Refrigerator(s),Stove(s)/Range(s)
Mortgage Calculator
Estimated Monthly Payment
$0
Provided by Beyond Real Estate, LLC
Down Payment Assistance Available
This property may qualify for homebuyer assistance programs
Find out if you’re eligible for down payment assistance programs that could help make this home more affordable. Programs can provide thousands of dollars toward your down payment and closing costs.
Check Your Eligibility