Property Details
108 Old Hill Road , Aberdeen, WA 98520
Aberdeen, WA 98520
$394,000
Active
Schedule a Tour
Select your date preference
Request More Info
1 / 32
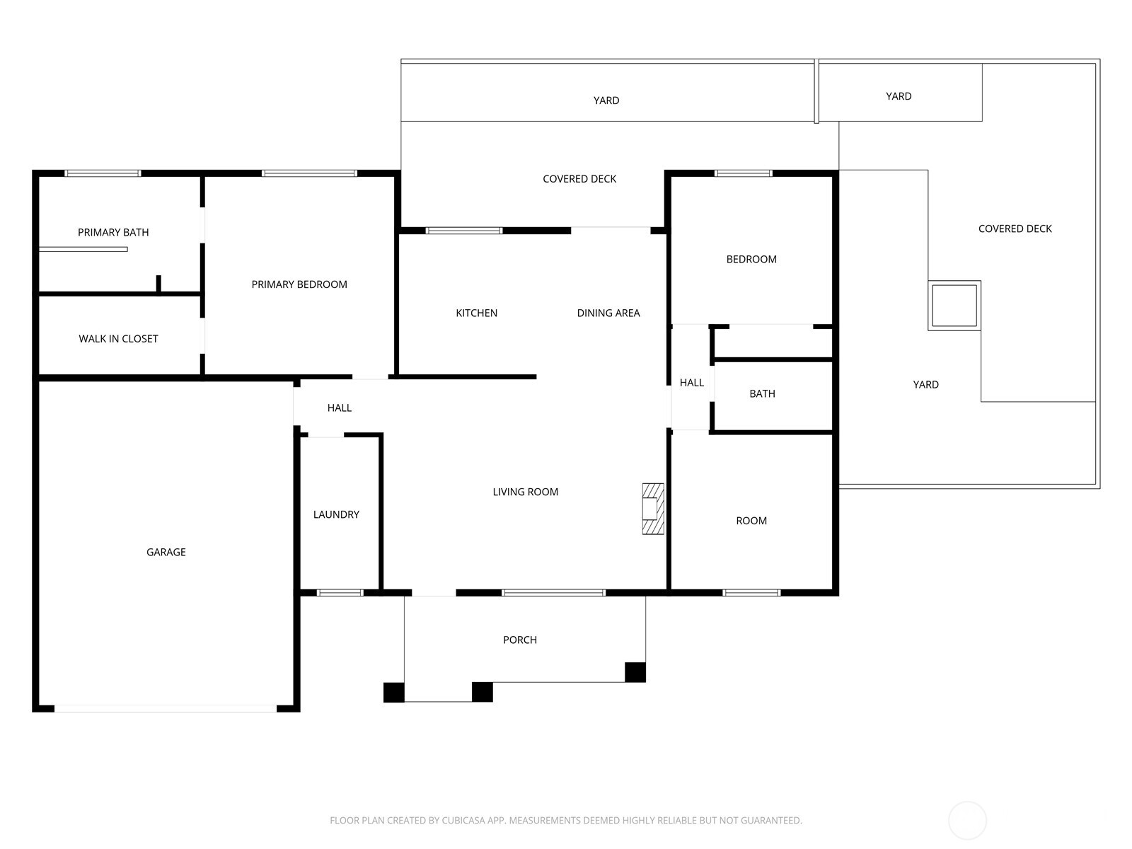
About This Home
Great Central Park home with space and comfort throughout! This 2+ bed, 2 bath home offers ~1,650 sq ft of functional living. Inside, the layout provides comfortable living areas with flexibility for an office, hobbies, or additional living space. Enjoy both a covered front porch and a back deck—perfect for relaxing or entertaining. An attached two-car garage adds convenience for parking and storage. A solid home with space to enjoy inside and out!
Property Details
Property Information
Property Type
Residential
Subtype
Single Family Residence
Status
Active
County
Grays Harbor
Neighborhood
Aberdeen
Listed
Apr 14, 2026
Interior Features
Bedrooms
2
Bathrooms
2.0
Living Area
1,644 sq ft
Basement
None
Entry Level
Main
Interior Features
Dbl Pane/Storm Window, Water Heater
Exterior & Lot
Lot Size
0.28 sqft
Year Built
2012
Exterior Materials
Cement Plank
Parking
Driveway, Attached Garage, Off Street
Sewer
Septic Tank
Water Source
Public
Lot Features
Paved
Exterior Features
Cement Planked
Location
City
Aberdeen
County
Grays Harbor
Coordinates
46.97337, -123.69099
Schools
School District
Aberdeen
Additional Information
Tax Year
2026
Annual Taxes
$4,646
Possession
Array
Inclusions
Dishwasher(s),Dryer(s),Refrigerator(s),Stove(s)/Range(s),Washer(s)
Mortgage Calculator
Estimated Monthly Payment
$0
Provided by Beyond Real Estate, LLC
Down Payment Assistance Available
This property may qualify for homebuyer assistance programs
Find out if you’re eligible for down payment assistance programs that could help make this home more affordable. Programs can provide thousands of dollars toward your down payment and closing costs.
Check Your Eligibility