Property Details
1209 S 10th Street
Mount Vernon, WA 98274
$799,000
Active
Schedule a Tour
Select your date preference
Request More Info
1 / 36
About This Home
Tucked into the desirable Hillcrest neighborhood of Mount Vernon, this thoughtfully preserved mid-century modern home offers a rare blend of privacy, character, and livable design. Set on a shy acre surrounded by mature evergreens, the home captures sweeping west-facing views over the Skagit Valley and unforgettable sunsets from multiple decks. Inside, clean lines, warm wood tones, and original built-ins reflect the home’s architectural roots, while meaningful updates bring comfort and functionality. The spacious layout lives larger than expected, with multiple gathering areas that flow easily for both quiet living and entertaining. The updated kitchen features quartz countertops, stainless appliances, and a double oven, opening to adjacent living and dining spaces filled with natural light. Large windows and sliding doors connect seamlessly to outdoor decks and patio areas, creating a true indoor-outdoor lifestyle. The expansive primary suite offers a private retreat with direct deck access, an updated bath, and generous space to unwind. Additional rooms provide flexibility for guests, office space, or creative use. Recent improvements include a metal roof (2021), new furnace (2020), and updated windows—allowing the next owner to enjoy both character and peace of mind. The fully fenced yard, multiple outdoor living areas, and terraced patio with spa create a setting that feels secluded yet connected to town. Now vacant and move-in ready, this is a unique opportunity
Property Details
Property Information
Property Type
Residential
Subtype
Single Family Residence
Status
Active
County
Skagit
Neighborhood
Hillcrest
Listed
Mar 11, 2026
Original Price
$840,000
Interior Features
Bedrooms
3
Bathrooms
2.0
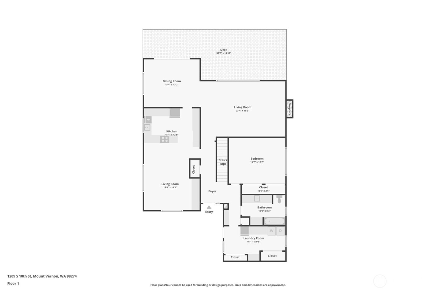
Living Area
2,680 sq ft
Entry Level
Main
Interior Features
Bath Off Primary, Dbl Pane/Storm Window, Dining Room, Fireplace, Walk-In Closet(s), Water Heater
Exterior & Lot
Lot Size
0.89 sqft
Year Built
1959
Exterior Materials
Brick, Wood
Parking
Attached Carport, Driveway, Off Street
Sewer
Sewer Connected
Water Source
Community
Lot Features
Curbs, Dead End Street, Paved, Sidewalk
Exterior Features
Brick, Wood
Location
City
Mount Vernon
County
Skagit
Coordinates
48.41347, -122.32973
Schools
School District
Mount Vernon
Additional Information
Tax Year
2025
Annual Taxes
$8,778
Possession
Array
Inclusions
Dishwasher(s),Double Oven,Microwave(s),Refrigerator(s),Stove(s)/Range(s),Washer(s)
Mortgage Calculator
Estimated Monthly Payment
$0
Provided by Beyond Real Estate, LLC
Down Payment Assistance Available
This property may qualify for homebuyer assistance programs
Find out if you’re eligible for down payment assistance programs that could help make this home more affordable. Programs can provide thousands of dollars toward your down payment and closing costs.
Check Your Eligibility