Property Details
1306 23rd Street
Bellingham, WA 98225
$964,000
Active
Schedule a Tour
Select your date preference
Request More Info
1 / 40
About This Home
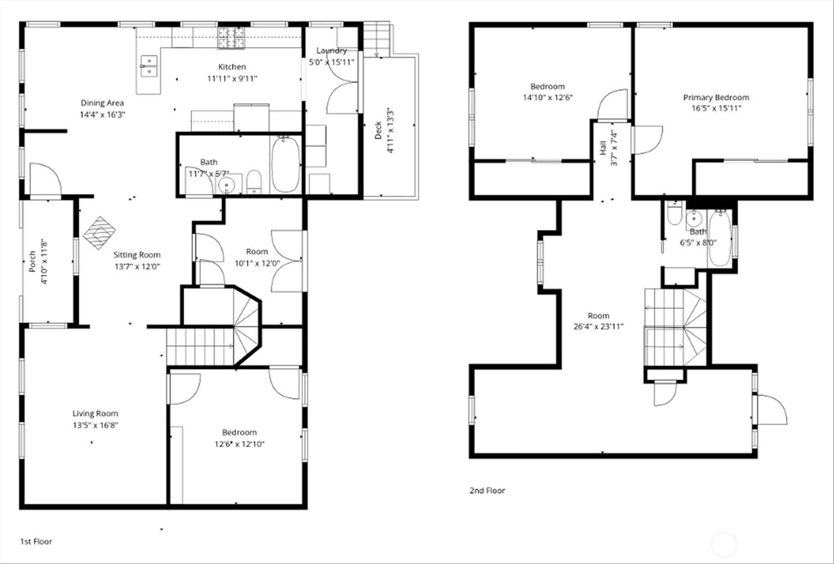
This perfect Southside character home has it all! Classic charm with the right updates: light-filled spaces, warm wood floors, & a modernized kitchen. Fresh paint, and new carpet—easy, comfortable, move-in ready. The kitchen shines with a full suite of stainless appliances and timeless finishes. The ground floor offers a bedroom on the main, and a work-from-home office w/a sunny view leading to the backyard out the French doors. Head upstairs, around the artisan staircase for two more large bedrooms, a bathroom, and a fun area to play or create. Tuck away with a good book in the owl cove or take a seat on the upper deck soaking in evening orange-glowed sunsets. Outdoor living? Done right! A large, fully fenced yard with lots of room to breathe. Garden beds offer 'farm to table' just steps from the kitchen. Expansive lower deck is perfect for gatherings. Covered patio with portico—rain or shine, you’re set. Mature shrubs and trees, adorned w/seasonal blooming flowers, decorate this property. Need space to create? You’ve got it. Oversized detached 2+ car garage with shop area, wood stove and 2 sliding wall doors that open wide to the backyard—projects, gear, or a true flex space. Bonus shed with windows—ideal for a studio or creative space. Centrally located just a few minutes to Fairhaven, WWU, I-5, and miles of trails. A neighborhood with a vibe. A home with personality!
Property Details
Property Information
Property Type
Residential
Subtype
Single Family Residence
Status
Active
County
Whatcom
Neighborhood
Happy Valley
Listed
Apr 23, 2026
Interior Features
Bedrooms
4
Bathrooms
2.0
Living Area
1,998 sq ft
Basement
None
Entry Level
Main
Interior Features
Ceiling Fan(s), Dining Room, Fireplace, French Doors, High Tech Cabling
Exterior & Lot
Lot Size
0.21 sqft
Year Built
1896
Exterior Materials
Cement Plank, Wood
Parking
Driveway, Attached Garage
Sewer
Sewer Connected
Water Source
Public
Lot Features
Paved, Sidewalk
Exterior Features
Cement Planked, Wood
Location
City
Bellingham
County
Whatcom
Coordinates
48.71965, -122.48773
Schools
School District
Bellingham
Additional Information
Tax Year
2025
Annual Taxes
$6,333
Possession
Array
Inclusions
Dishwasher(s),Dryer(s),Microwave(s),Refrigerator(s),Stove(s)/Range(s),Washer(s)
Mortgage Calculator
Estimated Monthly Payment
$0
Provided by Beyond Real Estate, LLC
Down Payment Assistance Available
This property may qualify for homebuyer assistance programs
Find out if you’re eligible for down payment assistance programs that could help make this home more affordable. Programs can provide thousands of dollars toward your down payment and closing costs.
Check Your Eligibility