Property Details
14003 263rd Avenue E
Buckley, WA 98321
$999,000
Active
Schedule a Tour
Select your date preference
Request More Info
1 / 39
About This Home
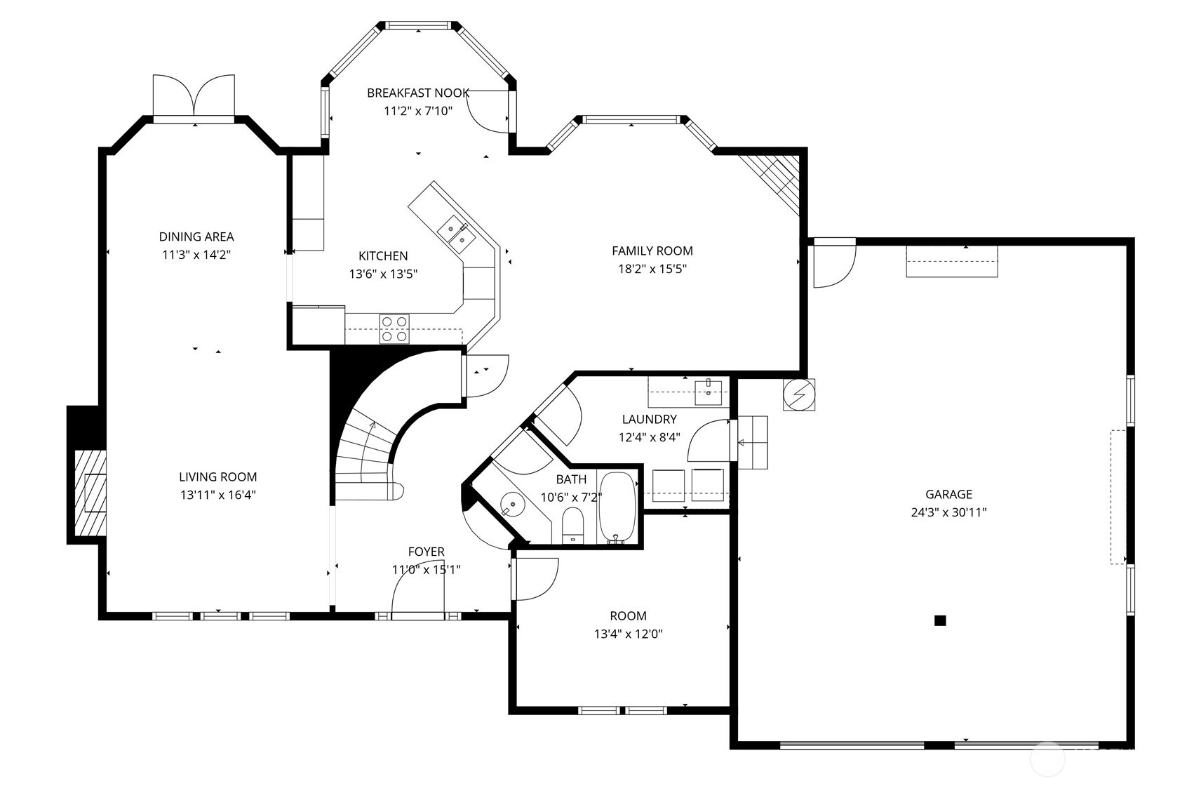
Your private retreat awaits in Lone Pine Estates. Set on 5.84 acres of lush, serene landscape and bordered by a peaceful stream, this well-maintained 3,110 sq ft custom home offers space, privacy, and endless possibilities. The thoughtfully designed main level features elegant living and dining areas, a spacious office on the main floor, and a welcoming family room that flows into the gourmet kitchen. Rich hardwood floors, coffered ceilings, and two gas fireplaces showcase timeless craftsmanship. Upstairs, the expansive primary suite includes a fireplace, jetted tub and en suite bath, while two additional bedrooms, a full bath, and a large versatile bonus room provide flexible living space and extra storage. Step outside and enjoy the beauty of nature with flower beds, territorial views, fruit trees, and a peaceful setting perfect for gardening, relaxing, or exploring your own private acreage. The property also features a fenced garden space, greenhouse, and a powered workshop/shed for projects or hobbies. With room for RV parking, a two-car garage, sprinkler system, an automatic generator for added peace of mind, and all appliances included, this property blends comfort, function, and natural beauty in a truly private setting.
Property Details
Property Information
Property Type
Residential
Subtype
Single Family Residence
Status
Active
County
Pierce
Neighborhood
Buckley
Listed
Mar 12, 2026
Original Price
$1,100,000
Interior Features
Bedrooms
3
Bathrooms
3.0
Living Area
3,110 sq ft
Basement
None
Entry Level
Main
Interior Features
Bath Off Primary, Ceiling Fan(s), Dbl Pane/Storm Window, Dining Room, Fireplace, Fireplace (Primary Bedroom), French Doors, Jetted Tub, Security System, Walk-In Closet(s), Water Heater, Wet Bar, Wired for Generator
Exterior & Lot
Lot Size
5.84 sqft
Year Built
1997
Exterior Materials
Cement Plank
Parking
Driveway, Attached Garage, RV Parking
Sewer
Septic Tank
Water Source
Shared Well
Lot Features
Dead End Street, Paved, Secluded
Exterior Features
Cement Planked
Location
City
Buckley
County
Pierce
Coordinates
47.12947, -122.07338
Schools
School District
White River
Elementary School
Wilkeson Elem
Middle School
Glacier Middle Sch
High School
White River High
HOA / Association
HOA Fee
$500 / Annually
HOA Includes
Common Area Maintenance
Additional Information
Tax Year
2026
Annual Taxes
$9,998
Possession
Array
Inclusions
Dishwasher(s),Dryer(s),Microwave(s),Refrigerator(s),Stove(s)/Range(s),Washer(s)
Mortgage Calculator
Estimated Monthly Payment
$0
Provided by Beyond Real Estate, LLC
Down Payment Assistance Available
This property may qualify for homebuyer assistance programs
Find out if you’re eligible for down payment assistance programs that could help make this home more affordable. Programs can provide thousands of dollars toward your down payment and closing costs.
Check Your Eligibility