Property Details
6041 E Agate Road , Shelton, WA 98584
Shelton, WA 98584
$550,000
Active
Schedule a Tour
Select your date preference
Request More Info
1 / 40
About This Home
Ever wanted a chalet in the woods WITH A TOWER??? This is it! This is such a magical place – when you meander down the gorgeous driveway onto this 8.8 acres, your stress will actually melt away. As the house comes into view, you will appreciate it's Northwest cedar wood siding, the attached decks for relaxing, and the rounded tower will delight you and all the visitors you have over to this chalet in the woods. There's a wood fireplace on each floor, both with blowers, beautiful flagstone surrounding them, and wood storage lockers. There are even two portholes! Nice ample 2-car attached garage with two electric roll-up doors. Outside is a hot tub, sprinkler system for the lovely grounds, and a pumphouse big enough to store all your yard tools. You just have to experience this enchanting home!
Property Details
Property Information
Property Type
Residential
Subtype
Single Family Residence
Status
Active
County
Mason
Neighborhood
Agate
Listed
Apr 12, 2026
Interior Features
Bedrooms
3
Bathrooms
2.0
Living Area
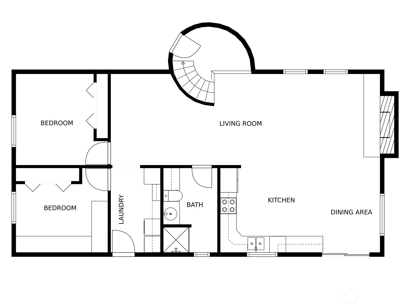
2,153 sq ft
Basement
None
Entry Level
Main
Interior Features
Bath Off Primary, Dbl Pane/Storm Window, Fireplace, Loft, Skylight(s), Water Heater
Exterior & Lot
Lot Size
8.86 sqft
Year Built
1984
Exterior Materials
Wood
Parking
Attached Garage
Sewer
Septic Tank
Water Source
Individual Well, Private
Lot Features
Paved
Exterior Features
Wood
Location
City
Shelton
County
Mason
Coordinates
47.21625, -122.96562
Schools
School District
Pioneer #402
Elementary School
Pioneer Primary Sch
Middle School
Pioneer Intermed/Mid
High School
Shelton High
Additional Information
Tax Year
2026
Annual Taxes
$3,659
Possession
Array
Inclusions
Dishwasher(s),Dryer(s),Microwave(s),Refrigerator(s),Stove(s)/Range(s),Washer(s)
Mortgage Calculator
Estimated Monthly Payment
$0
Provided by Beyond Real Estate, LLC
Down Payment Assistance Available
This property may qualify for homebuyer assistance programs
Find out if you’re eligible for down payment assistance programs that could help make this home more affordable. Programs can provide thousands of dollars toward your down payment and closing costs.
Check Your Eligibility