Property Details
2902 13th Street #3B
Everett, WA 98201
$325,000
Active
Schedule a Tour
Select your date preference
Request More Info
1 / 19
About This Home
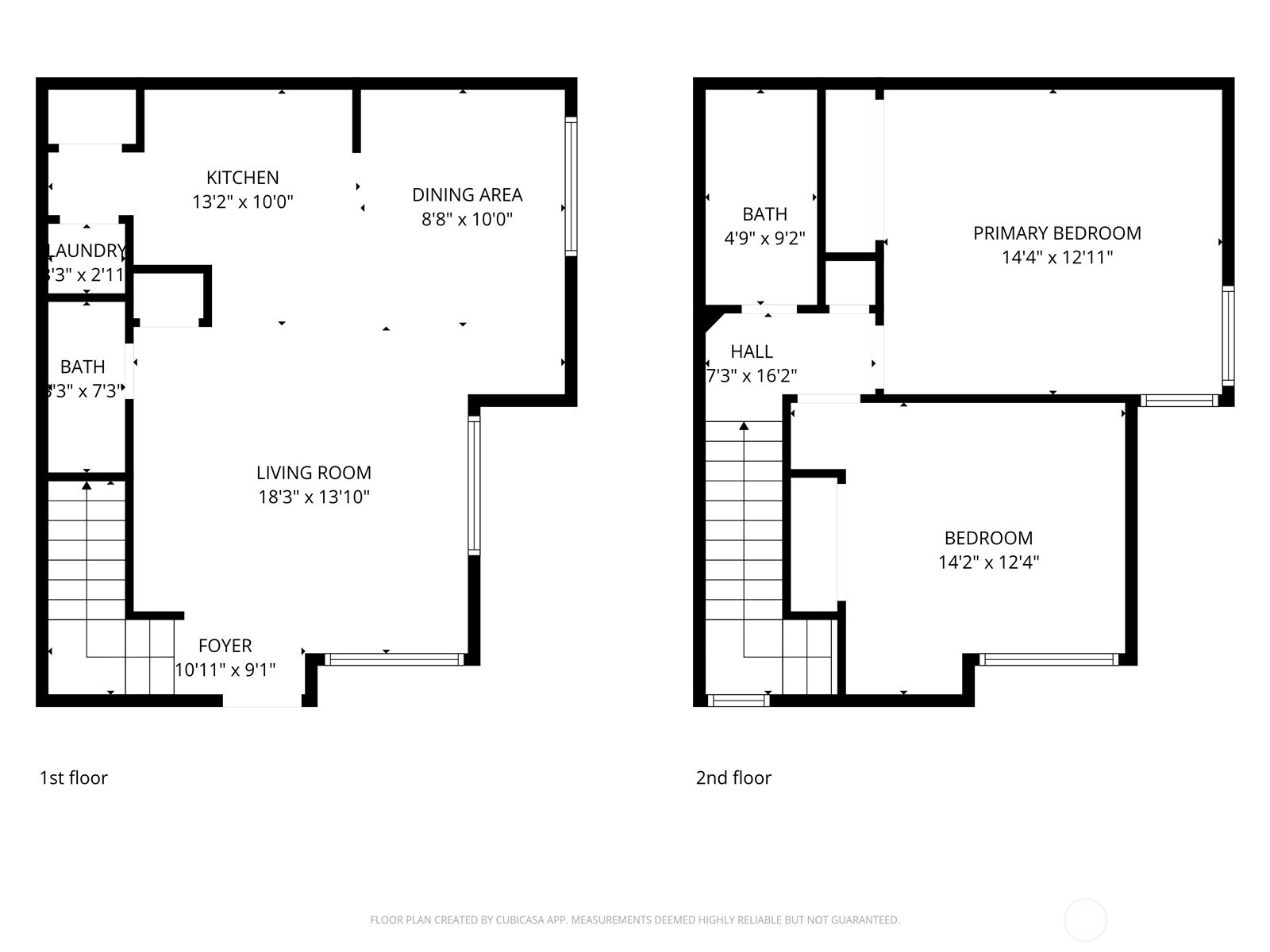
Move-in ready townhome-style living in the quiet Pine Village community! This freshly updated condo features a bright, open-concept layout with new interior paint and durable waterproof flooring throughout the main and upper levels. The spacious kitchen has been refreshed with new floor tiles and features a functional eating bar that flows seamlessly into the dining and living areas. The upper level offers two oversized bedrooms with generous closet space and a full bathroom. Natural light fills the entire home, which has been updated with modern recessed lighting. Outside, the home features a private front courtyard patio—perfect for outdoor seating, container gardening, or grilling. Seller is offering buyer credits to help with mortgage costs or a rate buy-down! Experience a hassle-free lifestyle with a comprehensive HOA utility bundle that covers water, sewer, garbage, and all exterior maintenance. This unit includes a reserved parking space and access to guest parking. Ideally located with quick access to I-5, the Everett Waterfront, shopping, and parks. Clean, modern, and ready for its new owner!
Property Details
Property Information
Property Type
Residential
Subtype
Condominium
Status
Active
County
Snohomish
Neighborhood
North Everett
Listed
Apr 18, 2026
Interior Features
Bedrooms
2
Bathrooms
2.0
Half Baths
1
Stories
2
Entry Level
Main
Interior Features
End Unit, Insulated Windows, Water Heater
Exterior & Lot
Lot Size
0.05 sqft
Year Built
1989
Exterior Materials
Cement Plank
Parking
Uncovered
Lot Features
Corner Lot, Paved, Sidewalk
Exterior Features
Cement Planked
Location
City
Everett
County
Snohomish
Coordinates
47.99977, -122.19160
Schools
School District
Everett
Elementary School
Hawthorne Elem
Middle School
North Mid
High School
Everett High
HOA / Association
HOA Fee
$590 / Monthly
HOA Includes
Common Area Maintenance, Sewer, Trash, Water
Additional Information
Tax Year
2025
Annual Taxes
$2,554
Possession
Array
Inclusions
Dishwasher(s)
Mortgage Calculator
Estimated Monthly Payment
$0
Provided by Beyond Real Estate, LLC
Down Payment Assistance Available
This property may qualify for homebuyer assistance programs
Find out if you’re eligible for down payment assistance programs that could help make this home more affordable. Programs can provide thousands of dollars toward your down payment and closing costs.
Check Your Eligibility